マンション
兵庫県神戸市中央区琴ノ緒町1丁目
- 画像
- パノラマ
- 動画
- マップ
物件概要
| 物件種別 | マンション | ||
|---|---|---|---|
| 物件名 | 兵庫県神戸市中央区琴ノ緒町1丁目 | ||
| 所在地 | 兵庫県神戸市中央区琴ノ緒町1丁目 | ||
| 交通機関 |
JR東海道本線神戸線 三ノ宮駅 徒歩5分 阪神本線 三宮駅 徒歩5分 |
||
| 賃料 | 11.7万円 | 管理費/共益費 | 15,710円 |
| 敷金/保証金 | 無 | 礼金 | 20万円 |
| 敷引/償却 | - | 更新区分 | 有:更新料11,000円 |
| 保険料 | 20,000円/2年 | 保証人 | 要 |
| 保証会社 |
必加入 / その他 / 初回保証料:- / 月額保証料:- 備考:日本セーフティー プレサンスギャランティ 月額合計の50% |
||
| 築年月 | 2013年1月(築13年) | 総戸数 | 68戸 |
| 所在階/階建 | 12階/12階建 | 構造 | RC |
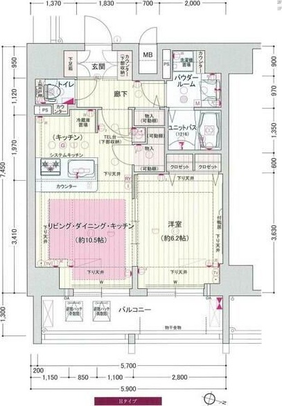
| 間取り | 1LDK | 間取り詳細 | 洋室6.2 |
| 専有面積 | 43.95㎡ | 契約形態 | 普通契約/1年 |
| 入居可能日 | 即日 | 駐車場 | |
| 取引態様 | 先物 | ||
| 備考 | |||
- 情報登録日:2026/03/27
- 情報更新日:2026/04/28
- 次回更新予定日:2026/05/12
設備・特徴
| バス・トイレ | バス・トイレ:別室、浴槽、給湯、室内洗濯機置き場 | ||
|---|---|---|---|
| キッチン | ガスコンロ:都市ガス | ||
| 設備・サービス | 宅配ボックス、駐輪場、音声インターホン、オートロック、ベランダ・バルコニー、下駄箱、エアコン、エアコン1台、冷房、CATV、BS、CS、光ファイバー、インターネット使用料無料 | ||
| その他・特徴 | 外国人可、分譲タイプ、最上階、高層階、公共下水、公営水道、都市ガス | ||
お問い合わせ
ホームメイトFC JR神戸店
所在地/兵庫県神戸市中央区北長狭通8丁目1-6 西元町ANDANTINO2階
営業時間/9:00~21:00 定休日/不定休
お問い合わせ番号:9765870
078-351-5020



